2-pok. Idealny zakup pod wynejem – park, Wisła, świetna komunikacja
Szczegółowe informacje
Oferujemy w wyjątkowej cenie - zakup tylko gotówkowy , mieszkanie w stanie deweloperskim położone w nowoczesnej inwestycji City Vibe bez podatku PCC! Lokalizacja, która łączy komfort życia blisko natury z doskonałą komunikacją – z jednej strony Park Rzeczny Ogród Płaszów, z drugiej – Bulwary Wiślane.
To idealna propozycja zarówno do zamieszkania, jak i jako pewna lokata kapitału POD WYNAJEM!.
Najważniejsze atuty:
✅ Możliwość wykończenia mieszkania pod klucz z pełnym wsparciem projektowym
✅ Bez PCC – oszczędzasz już na starcie!
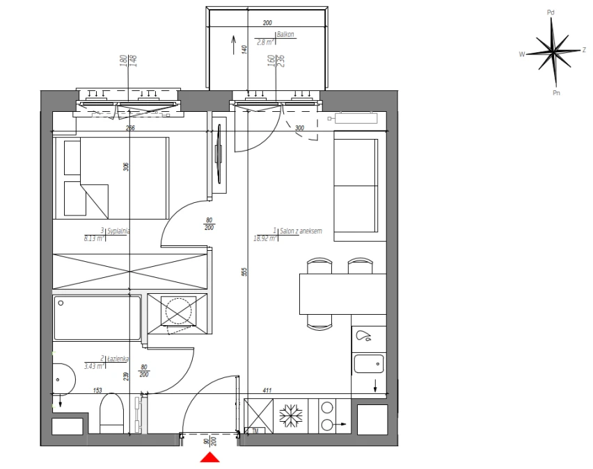
✅ Książkowy układ – na stosunkowo niewielkiej przestrzeni optymalna funkcjonalność
✅ Klimatyzacja + ogrzewanie podłogowe (łazienka) w standardzie
Układ mieszkania:
- Salon z aneksem kuchennym i jadalnią
- 1 sypialnia
- 1 łazienka
- Funkcjonalny przedpokój
- Balkon
- miejsce postojowe w garażu podziemnym – dodatkowo płatne 53 000 zł
Lokalizacja:
Osiedle Lasówka w City Vibe – idealne dla osób szukających balansu między naturą a miastem.
W pobliżu:
- Park Rzeczny Ogród Płaszów + Bulwary Wiślane – na spacery i rekreację
- Ścieżki rowerowe, Zalew Bagry, przystań żeglarska
- Szkoła podstawowa i przedszkole
- Centrum sportów zimowych Płaszów
- Sklepy i centra handlowe
- Komunikacja: tramwaj (9 min spacerem), autobus (przystanek tuż przy inwestycji)
Jeśli szukasz mieszkania z idealnym rozkładem w atrakcyjnej cenie, w spokojnej okolicy, a jednocześnie z szybkim dostępem do centrum – ta oferta jest dla Ciebie!
📞 Zapraszam do kontaktu!
Pośredników zapraszam wyłącznie z konkretnym klientem.
Opinie naszych klientów
Współpracowaliśmy przy sprzedaży mieszkania i cały proces…
Współpracowaliśmy przy sprzedaży mieszkania i cały proces przebiegł bardzo sprawnie oraz profesjonalnie.
Mieszkanie zostało bardzo dobrze wykończone, a klienci są bardzo zadowoleni z zakupu. Na każdym etapie współpracy mogliśmy liczyć na zaangażowanie, dobrą komunikację oraz szybkie reagowanie na wszystkie kwestie.
Firma wyróżnia się doświadczeniem, świetną organizacją oraz dbałością o…
Firma wyróżnia się doświadczeniem, świetną organizacją oraz dbałością o szczegóły — zarówno w zakresie sprzedaży, jak i wykończenia mieszkań.
Dodatkowo właściciel, Daniel, to osoba bardzo miła, konkretna i otwarta na współpracę, co zdecydowanie ułatwia codzienny kontakt.
Z pełnym przekonaniem polecam HOUSE CONCEPT INVEST.